- 08523 Plauen
- Schildstraße 27
- Kaltmiete354,00 €
- Warmmiete509,00 €
- Nebenkosten55,00 €
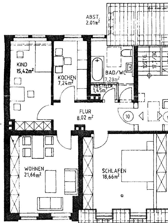
- Wohnfläche76,6 m²
- Anzahl Zimmer 3,0
- Objektnummer S27008
Objektbeschreibung
Objekttitel
Schöne Dachgeschoss Wohnung in der Schildstraße 27
Objektbeschreibung
Diese 3-Raum-Dachgeschosswohnung mit ca. 76,6 m² Wohnfläche liegt in zentraler Lage von Plauen, nur rund 10 Minuten vom Stadtzentrum entfernt. Der gut geschnittene Grundriss bietet vielseitige Nutzungsmöglichkeiten – ideal zum Wohnen, Arbeiten oder für Paare und kleine Familien.
Die Wohnung verfügt über drei helle Zimmer, die sich flexibel einrichten lassen. Das Badezimmer ist mit einer Badewanne ausgestattet und sorgt für zusätzlichen Komfort. Durch die Lage im Dachgeschoss entsteht eine ruhige, gemütliche Wohnatmosphäre, während Einkaufsmöglichkeiten, öffentliche Verkehrsmittel und weitere Angebote des täglichen Bedarfs schnell erreichbar sind.
Eine attraktive Wohnung für alle, die stadtnah wohnen und dennoch Wert auf Platz und Ruhe legen.
Am schnellsten und unkompliziertesten erreichen Sie uns über WhatsApp: +49 3741 276336 .So können wir Anfragen zügig beantworten und Besichtigungstermine flexibel abstimmen.
Ausstattung
- Bad
- Wanne, Fenster
- Heizungsart
- Zentral
- Befeuerung
- Gas
- Unterkellert
- Keller
- Abstellraum
Energiepass
- Energieausweistyp
- Bedarfsausweis
- Gültig bis
- 19.06.2029
- Energiebedarf
- 127
- Energieträger
- Gas
- Energieeffizienzklasse
- D
- Ausstelldatum
- 19.06.2019
- Geltende EnEV
- 2014
- Gebäudeart
- Wohngebäude
Kontaktperson
- Fax
- 03741 276336
Matthias Gräf
Engelstr. 06
08523 Plauen
Telefon: +49 (0) 3741 / 276336
Fax: +49 (0) 3741 / 276350
Whatsapp: Nachricht senden
Immobiliendetails
- Objekt / Online - Nr.
- S27008
- Vermarktung
- miete_pacht
- Objektart
- wohnung
Kosten
- Kaltmiete
- 354,00 €
- Warmmiete
- 509,00 €
- Nebenkosten
- 55,00 €














